Biuro nieruchomości Jelenia Góra
Lokalizacja

Jana Sobieskiego 8, 

58-500 Jelenia Góra

Dom do remontu w Wojcieszycach
 0
 1
 2
 3
 4
 5
 6
 7
 8
 9
 10
 11
 12
 13
 14
 15
 16
 17
 18

Dom do remontu w Wojcieszycach

Dom
Wojcieszyce
151 m2
8
2
1500 m2
Sprzedaż
349000,00

Oferta wyłącznie w naszym biurze - nie szukaj dalej.


Biuro Nieruchomości Select M ma przyjemność zaprezentować Państwu dom w stanie remontu o powierzchni użytkowej 151 m², położony w malowniczych Wojcieszycach – w jednej z najbardziej atrakcyjnych lokalizacji między Jelenią Górą a Szklarską Porębą.


Nieruchomość idealnie sprawdzi się w przypadku osób poszukujących spokojnego miejsca do życia, rodzin wielopokoleniowych lub jako inwestycja pod wynajem (możliwość podziału na 3 osobne mieszkania).


Lokalizacja: Wojcieszyce, Gmina Stara Kamienica
• sklep spożywczy: ok. 1 km;
• przystanek autobusowy: ok. 100 m;
• szkoła podstawowa: ok. 1,2 km;
• Jelenia Góra: ok. 7 km;
• Szklarska Poręba: ok. 12 km;
• Karpacz: ok. 20 km;

Podstawowe informacje:

Parter powierzchnia całkowita– 121 m²:
• 6 pokoi;
• 2 kuchnie;
• korytarz;
• łazienka;
• WC;
• kotłownia;
• pomieszczenie gospodarcze;
• 2 ganki;

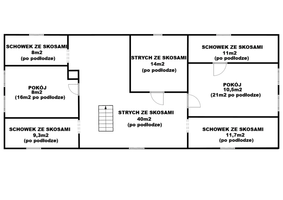
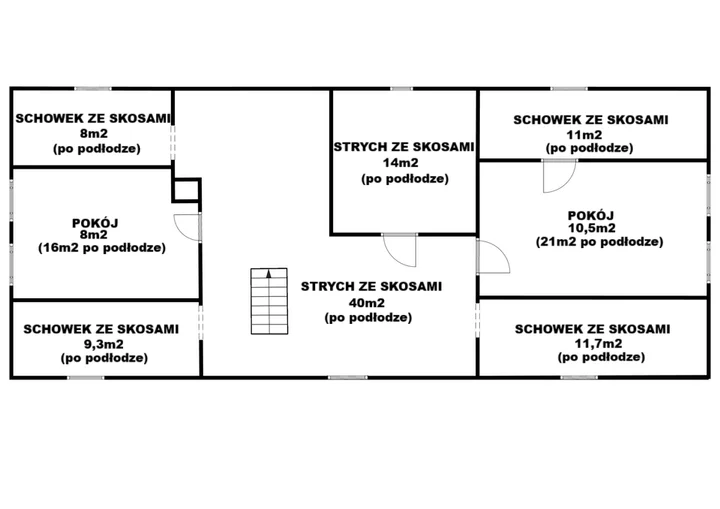
Pierwsze piętro powierzchnia użytkowa 30 m², (powierzchnia całkowita po podłodze 131 m²):
• 2 pokoje*;
• pomieszczenie gospodarcze;
• 4 schowki ze skosami;
• strych;

*W przypadku pokoi na pierwszym piętrze wysokość pomieszczeń wynosi 1,96 m, z tego względu powierzchnia użytkowa jest uwzględniona w 50%. Po podłodze powierzchnia pokoi wynosi 60 m².

Drugie piętro:
• strych;
Piwnica - ok 15m²;

Pomieszczenia gospodarcze:
• 2 murowane o powierzchni 31 m² oraz 13 m²;
• 1 drewniane o powierzchni 21 m² (wymaga naprawy lub rozbiórki);

Budynek:
• rodzaj zabudowy: wolnostojąca;
• liczba kondygnacji naziemnych: 3;
• stolarka okienna: PVC;
• wysokość pomiwszczeń na parterze: 2,46m; 
• technika budowy: tradycyjna;
• materiał budynku: cegła;
• pokrycie dachu: dachówka, stan dobry;
• stan elewacji: wymaga remontu;
• ogrodzenie: siatka ogrodzeniowa;
• odprowadzenie ścieków: kanalizacja;
• źródło wody: wodociąg gminny;
• ogrzewanie: centralne, piec stałopalny;
• ogrzewanie wody: elektryczny przepływowy podgrzewacz lub z pieca centralnego;

Informacje dodatkowe:
powierzchnia działki: 1500 m²;
• przez działkę przechodzi rzeka;
• forma własności: pełna własność;
• stan: do remontu;
• dostępność: natychmiast;
• wyposażenie: do uzgodnienia;

Gorąco polecam i zapraszam wszystkich zainteresowanych do oglądania!

*Prezentowana oferta sprzedaży nieruchomości nie stanowi oferty handlowej w rozumieniu Art. 66 par. 1 Kodeksu Cywilnego, a dane w niej zawarte mają charakter jedynie informacyjny i mogą ulec zmianie.

Zapraszam na prezentację

owner

Ilona Tarczoń

ul. Sobieskiego 8 (parter),
Jelenia Góra

Domy