Biuro nieruchomości Jelenia Góra
Lokalizacja

Jana III Sobieskiego 8, 

Jelenia Góra

Mieszkanie w kamienicznym stylu w pobliżu centrum Jeleniej Góry
 0
 1
 2
 3
 4
 5
 6
 7

Mieszkanie w kamienicznym stylu w pobliżu centrum Jeleniej Góry

Mieszkanie
Jelenia Góra
51,8 m2
2
2
Sprzedaż
Centrum
249000,00

Biuro nieruchomości Select M zaprasza do zapoznania się z ofertą sprzedaży mieszkania z potencjałem inwestycyjnym w formie wynajmu długoterminowego.

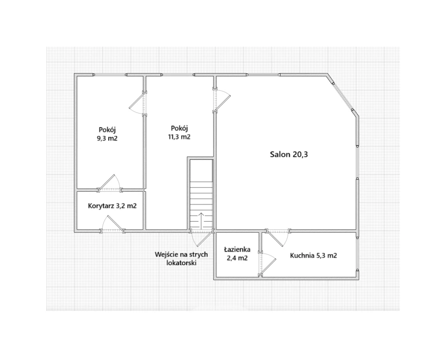
Na drugim piętrze kamienicy w centrum Jeleniej Góry znajduje się 2-pokojowe mieszkanie o powierzchni 51,8 m² – idealne dla inwestora lub osób, które marzą o stworzeniu nietuzinkowej przestrzeni w historycznym budynku.

Układ pomieszczeń:
• przedpokój
• dwa pokoje
• kuchnia
• łazienka z WC
• pomieszczenie gospodarcze

W lokalu wymieniono okna na PVC oraz zainstalowano nowy piec gazowy dwufunkcyjny.

Informacje o budynku:
Dwupiętrowa kamienica jest zarządzana przez wspólnotę mieszkaniową (czynsz: ok. 350 zł).
Dach został wymieniony, elewacja jest częściowo odnowiona, a w planach są dalsze prace remontowe, w tym modernizacja klatki schodowej.

Do mieszkania przynależy piwnica oraz pomieszczenie gospodarcze na półpiętrze.
Mieszkańcy mają również do dyspozycji wspólny strych.

Lokalizacja – centrum miasta:
Bliskość szkół, przedszkoli, sklepów, przystanków komunikacji miejskiej oraz jeleniogórskiego deptaka, sprawia, że to miejsce doskonale nadaje się zarówno do zamieszkania, jak i pod inwestycję w formie wynajmu długoterminowego.

Dlaczego warto:
• doskonała lokalizacja w pobliżu centrum miasta
• niskie koszty utrzymania
• miejsca parkingowe przy budynku
• pełna swoboda aranżacji wnętrza

To mieszkanie, które po kompleksowym remoncie może znacząco zyskać na wartości i generować stały dochód z wynajmu.

Jeśli szukasz projektu z potencjałem i świetną stopą zwrotu – ta nieruchomość to strzał w dziesiątkę!

*Prezentowana oferta sprzedaży nieruchomości nie stanowi oferty handlowej w rozumieniu Art. 66 §1 Kodeksu Cywilnego, a dane w niej zawarte mają charakter jedynie informacyjny i mogą ulec zmianie.

Zapraszam na prezentację

owner

Patryk Pirus

ul. Sobieskiego 8 (parter),
Jelenia Góra

Mieszkania